根据《省人民政府关于武汉市汉阳区2023年度第4批次城市建设用地的批复》(鄂政土批〔2024〕66号)文件,湖北省人民政府已经批准同意武汉市汉阳区人民政府对下列集体土地办理征收和农用地转用手续。现将有关事项公告如下:
一、申请用地单位: 武汉市汉阳区土地储备事务中心
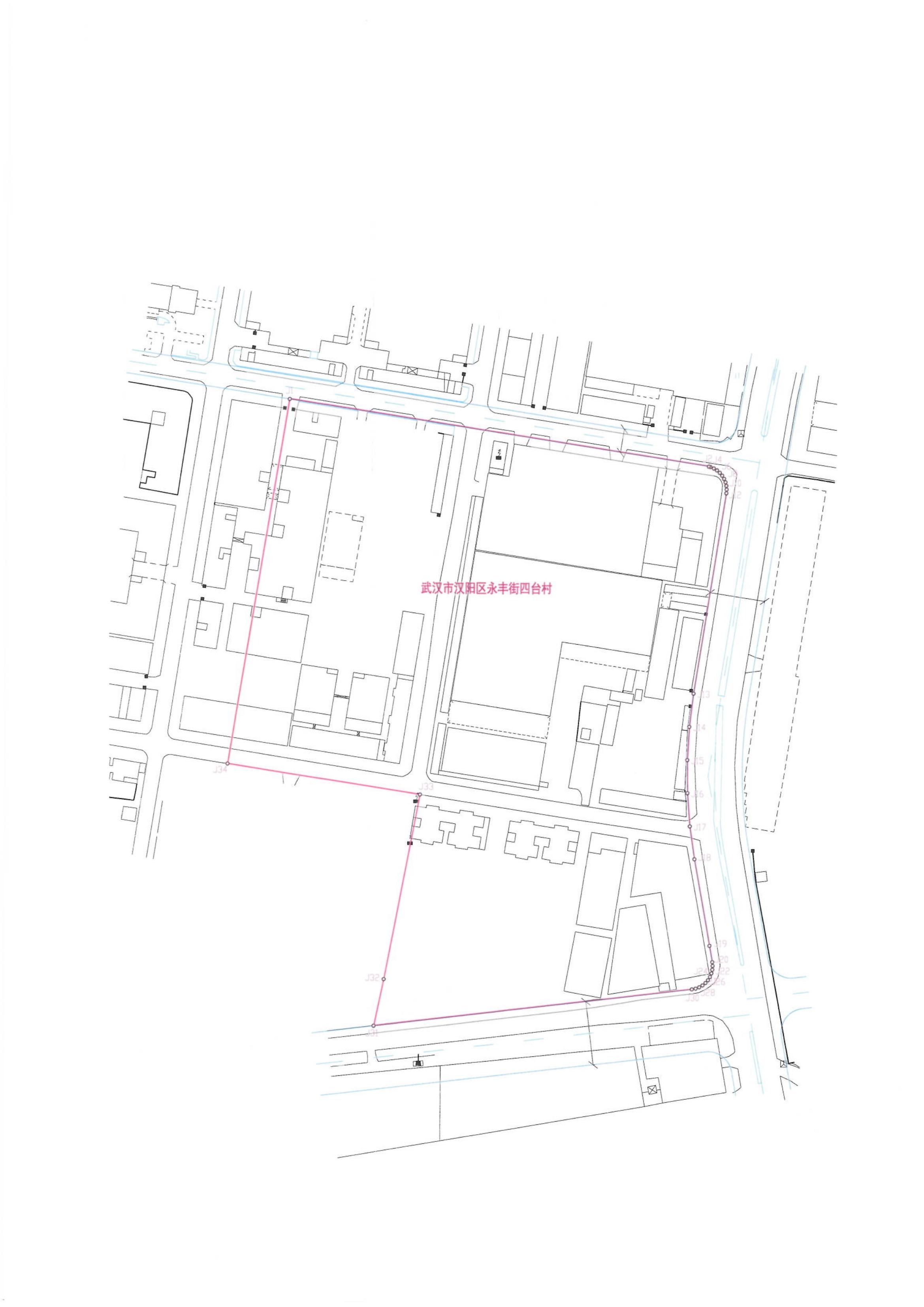
二、征收土地位置:永丰街黄金口村、四台村。征地总面积为25.2356公顷(位置及范围详见附图)。集体土地所有权人为:永丰街黄金口村、四台村。
三、征地补偿标准及具体补偿费按照《征地补偿安置方案公告》及《征地补偿安置协议》执行。
四、自本公告发布之日起,工商、税务、公安等部门应停止办理征收土地范围内的有关工商、税务登记及户口迁移等手续。
五、若对《省人民政府关于武汉市汉阳区2023年度第4批次城市建设用地的批复》(鄂政土批〔2024〕66号)文件不服的,可自公告期满60天内向湖北省人民政府申请行政复议。
特此公告
附件:汉阳区人民政府征收土地公告(阳征公告[2024]字第2号)附图
武汉市汉阳区人民政府
2024年1月24日
( 本公告属主动公开的政府信息,可登陆“武汉市汉阳区人民政府网站http://www.hanyang.gov.cn/”的“市属分支机构—汉阳规划分局—规划分局—农村集体土地征收”专栏查询)





扫一扫在手机上查看当前页面